Обяви За нас Контакти
Продава 2-СТАЕН
град Варна, Операта
142 000 €
277 727.86 лв.

(2 679 €, 5 239.67 лв./m2)
Цената е с включено ДДС
История на цената
Публикувана в 14:55 на 14 ноември, 2025 год.
Обявата е посетена 50 пъти.
Площ:
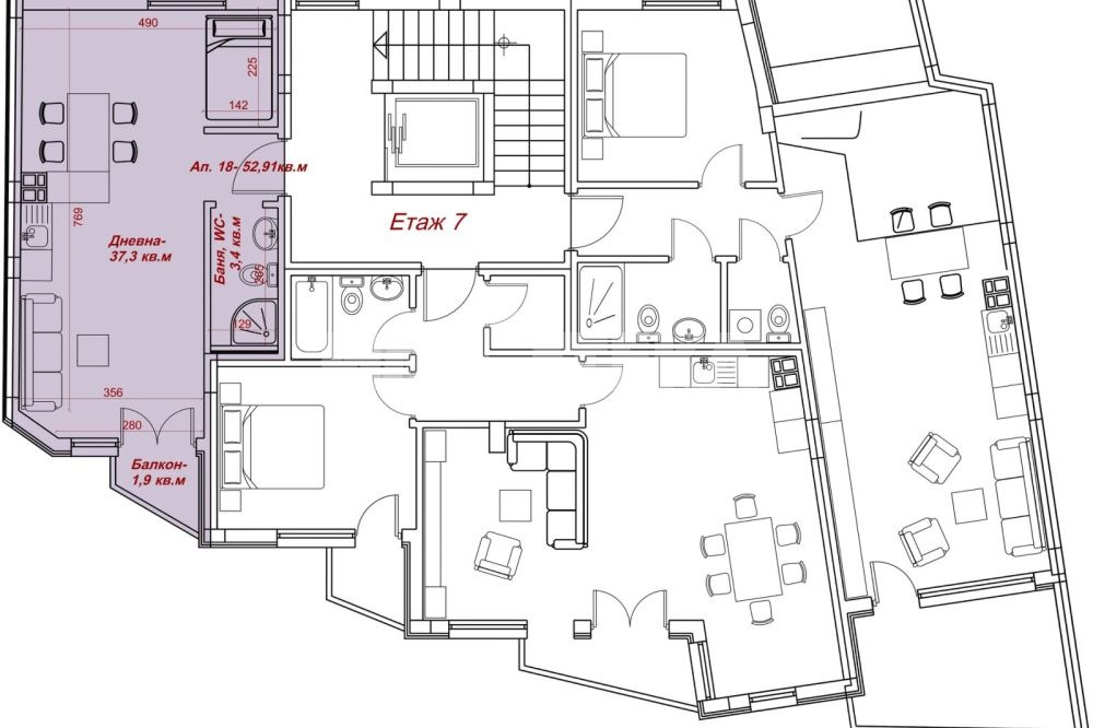
53 m2
Етаж:
7-ми от 7
Газ:
НЕ
ТEЦ:
НЕ
Строителство:
Тухла, 2025 г.

Описание на имота:


Двустаен апартамент с морска панорама в централната част на Варна

Предлагаме за продажба компактен и функционален апартамент с площ 53 кв.м, разположен на 7-ми етаж в новострояща се жилищна сграда в сърцето на града.

Апартамента е с височина от 4.80 м , което позволява преустройство в тристаен имот, тип мезонет!

Разпределение:


Просторна дневна с кухненска и трапезна зона (~37,5 кв.м)


Баня с тоалетна (~3,7 кв.м)


Антре (~6,5 кв.м)


Балкон (~2 кв.м), от който се разкрива морска панорама


Възможност за отделяне на спалня


Сграда:


Качествено строителство от доказан инвеститор


Модерен дизайн и функционални разпределения


Гъвкави схеми на плащане


Локация:
Централната част на Варна с лесен достъп до морската градина, главни булеварди, търговски обекти, спирки и училища.

Подходящ както за личен дом, така и за инвестиция с висок потенциал за отдаване под наем.
В пряка близост до спирки на градски транспорт, училища, детски градини, пешеходно разстояние до пешеходната зона на Центъра на града и Морска гара.


Нова сграда, изпълнена с висококачествени материали с модерна визия и архитектура.
Качество на строителство. Локация. Правилни форми на стаите. Морска панорама
Обади се сега и цитирай този код 664596
Виж всички обяви в imotekavarna.bazar.bg или тук
Особености
Тухла
Асансьор
За контакт:
088 21 21 458
Брокер:
Клиентски център ИМОТЕКА, Кантора Батенберг
0882 121 458
Офис: Варна, бул. Мария Луиза 8
Още оферти от брокера: Продава | Дава под наем | Купува | Наема
Агенция:
ИМОТЕКА
0882 121 458
ИМОТЕКА logo
Медал за прослужено време
В imot.bg от 2017 г.
imotekavarna.imot.bg
Адрес:
област Варна, гр. Варна, бул. Мария Луиза 8
http://www.imoteka.bg
ИЗПРАТИ ЗАПИТВАНЕ
ИЗПРАТИ ЗАПИТВАНЕТО

Продава 2-СТАЕН
град Варна, Операта
Обява: 1b176312492666846

142 000 €
277 727.86 лв.
История на цената
(2 679 €, 5 239.67 лв./m2)

Цената е с включено ДДС
ЗАПАЗИ ОБЯВАТА

Местоположение: град Варна, Операта