Обяви За нас Контакти
Продава 2-СТАЕН
град Варна, Операта
252 000 €
492 869.16 лв.

(2 681 €, 5 243.58 лв./m2)
Не се начислява ДДС
История на цената
Коригирана в 3:15 на 13 декември, 2025 год.
Обявата е посетена 681 пъти.
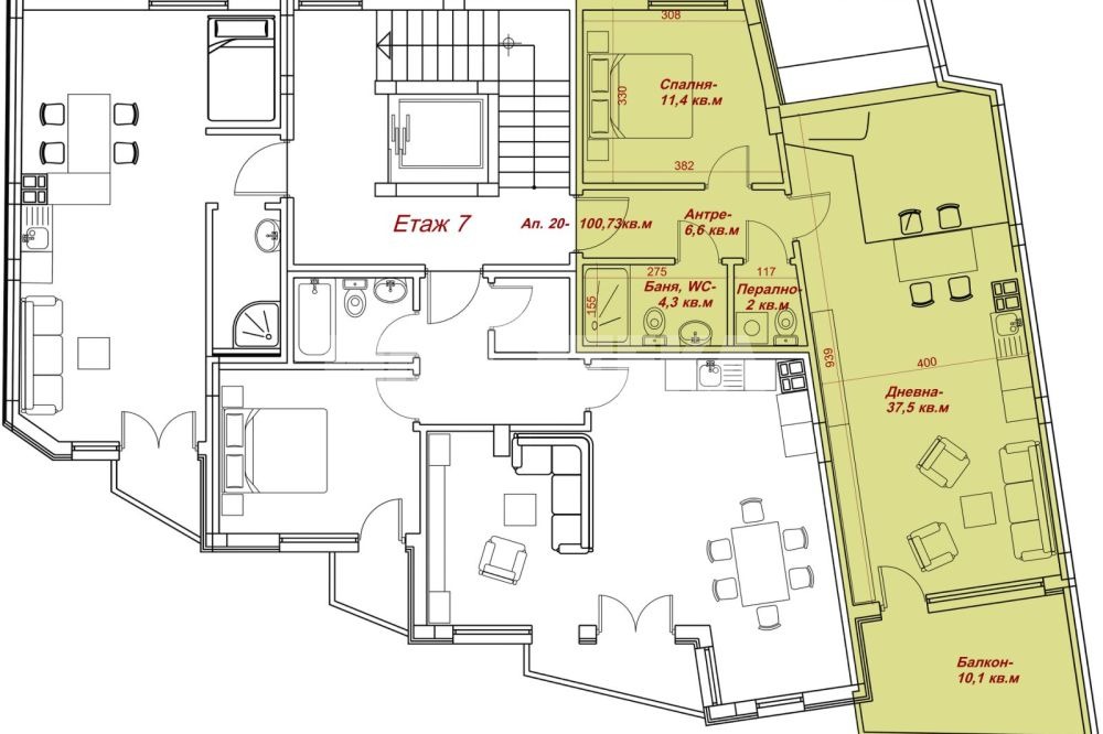
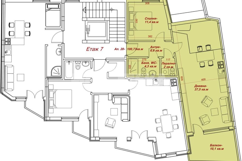
Площ:
94 m2
Етаж:
7-ми от 7
Газ:
НЕ
ТEЦ:
НЕ
Строителство:
Тухла, 2025 г.

Описание на имота:


Апартамент с отлични характеристики и морска панорама в района на Операта и идеалния център на гр. Варна. Жилището е с обща площ от 94 кв.м и височина на таваните от 4.80 м, което позволява преустройството му в тристаен или многостаен апартамент.

Разпределение:

Входно антре
Голяма дневна с излаз на балкон и панорама към морето
Спалня
Две санитарни помещения

Висококачествено строителство, гъвкави схеми на плащане, доказан строител с над 20-годишен опит на пазара.



В пряка близост до спирки на градски транспорт, училища, детски градини, пешеходно разстояние до пешеходната зона на Центъра на града и Морската гара.


Нова сграда, изпълнена с висококачествени материали с модерна визия и архитектура.


Качество на строителство
Локация
Правилни форми на стаите
Морска панорама

Обади се сега и цитирай този код 664599
Особености
Тухла
Асансьор
За контакт:
088 21 21 458
Брокер:
Клиентски център ИМОТЕКА, Кантора Батенберг
0882 121 458
Офис: Варна, бул. Мария Луиза 8
Още оферти от брокера: Продава | Дава под наем | Купува | Наема
Агенция:
ИМОТЕКА
0882 121 458
ИМОТЕКА logo
Медал за прослужено време
В imot.bg от 2017 г.
imotekavarna.imot.bg
Адрес:
област Варна, гр. Варна, бул. Мария Луиза 8
http://www.imoteka.bg
ИЗПРАТИ ЗАПИТВАНЕ
ИЗПРАТИ ЗАПИТВАНЕТО

Продава 2-СТАЕН
град Варна, Операта
Обява: 1b176313301764177

252 000 €
492 869.16 лв.
История на цената
(2 681 €, 5 243.58 лв./m2)

Не се начислява ДДС
ЗАПАЗИ ОБЯВАТА

Местоположение: град Варна, Операта

Допълнителни данни за имотите в района и сравнение с други райони

Покажи

Период

и 3 месеца

* Средните цени са определени чрез медианна стойност